本文へジャンプ

【 トミタビル 3F 302号室 窓向き】     

ホーム
会社概要
セキュリティ
オフィス 

  【3F エレベーター前】 

【トミタビル】

名古屋駅エリア

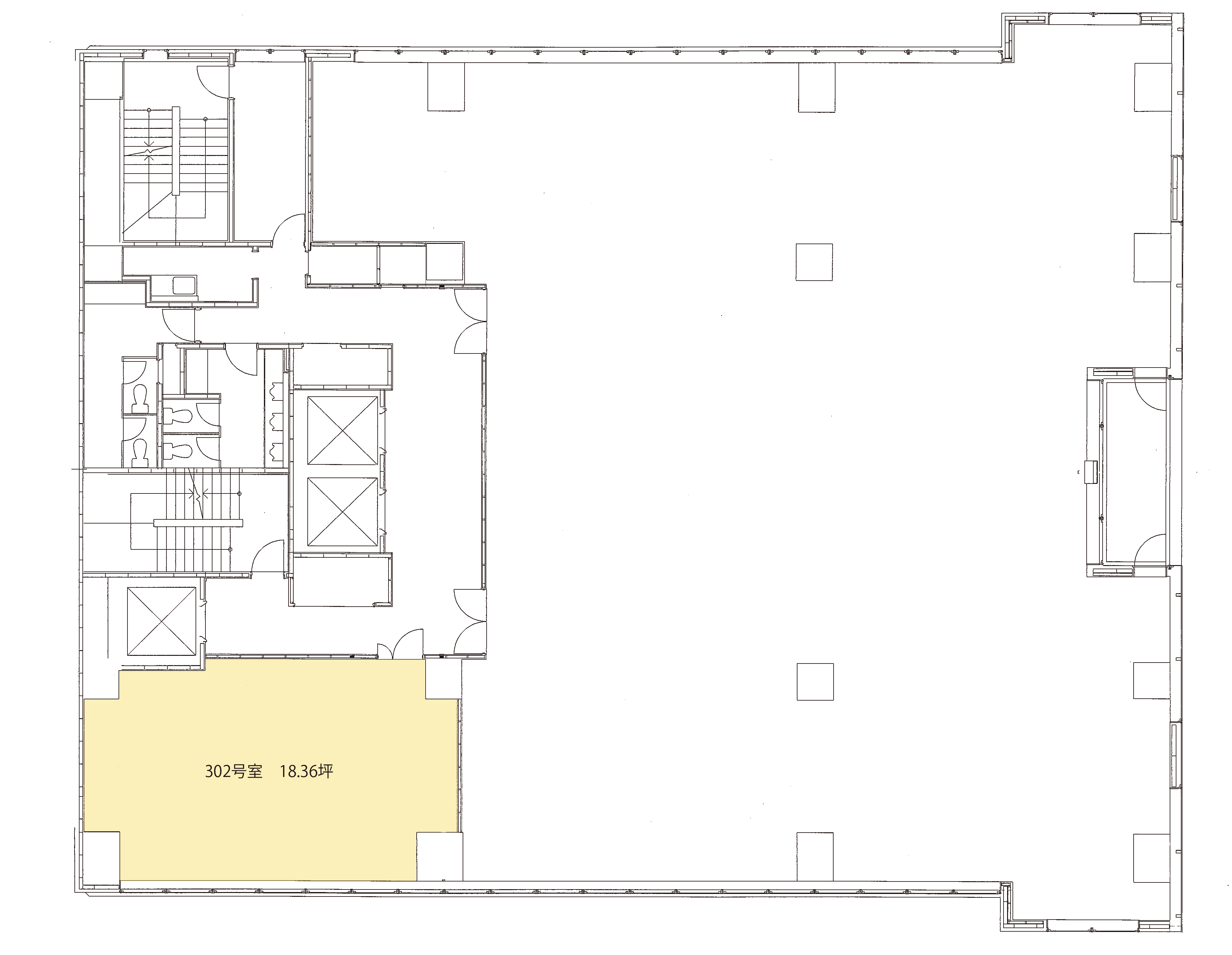
トミタビル 3F 302号室 18.36坪   
空室
※分割要相談

名古屋駅  徒歩10分
亀島駅    徒歩4分




【3階平面図】

丸の内駅エリア

空室無し
    

丸の内駅 エレベータ出口目の前


【丸の内TKビル】

【丸の内TKビル 2F】

【1Fエレベーター前】

【給湯室 各フロア】

TOMITA.BLD
■オフィス
■お問い合わせ
交通アクセス
施設
会社概要
■ホーム
■セキュリティ
施設
交通アクセス
お問い合わせ
TOMITA.BLD